ZARÁŽKY ZADNÍ

Použití:

Zarážky zadní jsou používány v regálových skladech. Instalují se na zadní stranu sloupů a slouží k zabránění posunu palety v regále.

Provedení:

Držáky zarážek jsou vyráběny z ocelových ohýbaných plechů a příčníky mezi nimi jsou z ocelových uzavřených profilů. Zarážky zadní se uchycují pomocí ocelových šroubů k zadní straně sloupu. Montážní šrouby jsou součástí dodávky.

Zarážky zadní se dodávají s povrchy lakovanými, nebo zinkovanými. Standardní barevné provedení lakovaného povrchu je RAL 2009.

Na základě požadavku zákazníka dodáváme i zarážky na zakázku. Navrhujeme je tak, aby vyhovovaly přesně požadavkům zákazníka. Nestandardní rozměry, různé materiály, nebo povrchové úpravy.

Pro poptávku, nebo objednání nás můžete kontaktovat přímo na emailovou  adresu info@apme.cz, nebo zavolat na tel.: +420 604 287 322 

Držák zarážky přímý ZZP 80-StxLak

Držák zadní zarážky přímý šířky 80mm. Tři řady drážek umožňují nastavení vzdálenosti příčky od sloupu regálu. Povrch lakován v odstínu RAL 2009.

Zarážka zadní ZZP 80 Zarážka zadní ZZP 80
ke stažení: pdf dwg step

Držák zarážky přímý ZZP 100-StxLak

Držák zadní zarážky přímý šířky 100mm. Tři řady drážek umožňují nastavení vzdálenosti příčky od sloupu regálu. Povrch lakován v odstínu RAL 2009.

Zarážka zadní ZZP 100 Zarážka zadní ZZP 100
ke stažení: pdf dwg step

Držák zarážky přímý ZZP 120-StxLak

Držák zadní zarážky přímý šířky 120mm. Tři řady drážek umožňují nastavení vzdálenosti příčky od sloupu regálu. Povrch lakován v odstínu RAL 2009.

Zarážka zadní ZZP 120 Zarážka zadní ZZP 120
ke stažení: pdf dwg step

Držák zarážky přímý ZZP 80-StxZn

Držák zadní zarážky přímý šířky 80mm. Tři řady drážek umožňují nastavení vzdálenosti příčky od sloupu regálu. Povrch zinkován.

Zarážka zadní ZZP 80 Zarážka zadní ZZP 80
ke stažení: pdf dwg step

Držák zarážky přímý ZZP 100-StxZn

Držák zadní zarážky přímý šířky 100mm. Tři řady drážek umožňují nastavení vzdálenosti příčky od sloupu regálu. Povrch zinkován.

Zarážka zadní ZZP 100 Zarážka zadní ZZP 100
ke stažení: pdf dwg step

Držák zarážky přímý ZZP 120-StxZn

Držák zadní zarážky přímý šířky 120mm. Tři řady drážek umožňují nastavení vzdálenosti příčky od sloupu regálu. Povrch zinkován.

Zarážka zadní ZZP 120 Zarážka zadní ZZP 120
ke stažení: pdf dwg step

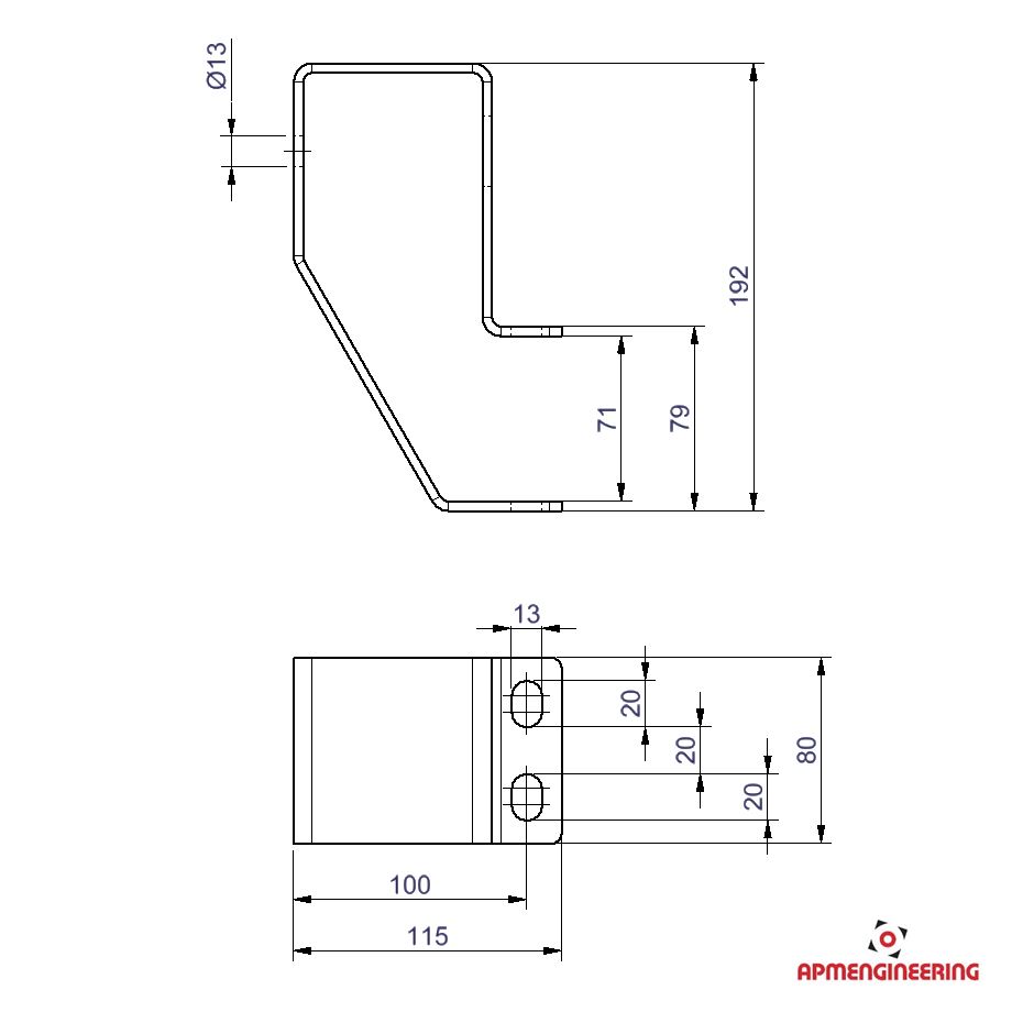
Držák zarážky šikmý ZZS 80-StxLak

Držák zadní zarážky šikmý šířky 80mm. Tvar držáku umožňuje uchycení příčky ve snížené poloze. Povrch lakován v odstínu RAL 2009.

Zarážka zadní ZZS 80 Zarážka zadní ZZS 80
ke stažení: pdf dwg step

Držák zarážky šikmý ZZS 100-StxLak

Držák zadní zarážky šikmý šířky 100mm. Tvar držáku umožňuje uchycení příčky ve snížené poloze. Povrch lakován v odstínu RAL 2009.

Zarážka zadní ZZS 100 Zarážka zadní ZZS 100
ke stažení: pdf dwg step

Držák zarážky šikmý ZZS 120-StxLak

Držák zadní zarážky šikmý šířky 120mm. Tvar držáku umožňuje uchycení příčky ve snížené poloze. Povrch lakován v odstínu RAL 2009.

Zarážka zadní ZZS 120 Zarážka zadní ZZS 120
ke stažení: pdf dwg step

Držák zarážky šikmý ZZS 80-StxZn

Držák zadní zarážky šikmý šířky 80mm. Tvar držáku umožňuje uchycení příčky ve snížené poloze. Povrch zinkován.

Zarážka zadní ZZS 80 Zarážka zadní ZZS 80
ke stažení: pdf dwg step

Držák zarážky šikmý ZZS 100-StxZn

Držák zadní zarážky šikmý šířky 100mm. Tvar držáku umožňuje uchycení příčky ve snížené poloze. Povrch zinkován.

Zarážka zadní ZZS 100 Zarážka zadní ZZS 100
ke stažení: pdf dwg step

Držák zarážky šikmý ZZS 120-StxZn

Držák zadní zarážky šikmý šířky 120mm. Tvar držáku umožňuje uchycení příčky ve snížené poloze. Povrch zinkován.

Zarážka zadní ZZS 120 Zarážka zadní ZZS 120
ke stažení: pdf dwg step

Příčka ZZP 2706-StxLak

Příčka určená k uchycení pomocí  zadních držáků přímých, nebo šikmých. Délka této příčky je navržená pro regálové sloupy, mezi kterými je vnitří vzdálenost 2706mm. Povrch lakován v odstínu RAL 2009. Součástí příčky jsou dva šrouby k uchycení k držáku.

Příčka ZZP 2706 Příčka ZZP 2706
ke stažení: pdf dwg step

Příčka ZZP 2706-StxZn

Příčka určená k uchycení pomocí  zadních držáků přímých, nebo šikmých. Délka této příčky je navržená pro regálové sloupy, mezi kterými je vnitří vzdálenost 2706mm. Povrch zinkován. Součástí příčky jsou dva šrouby k uchycení k držáku.

Příčka ZZP 2706 Příčka ZZP 2706
ke stažení: pdf dwg step

 

 
     

 

inPagewebové stránky s AI, doménawebhosting u jediného 5★ registrátora v ČR