KOMPLETNÍ TECHNICKÁ DOKUMENTACE STROJŮ A ZAŘÍZENÍ, HLINÍKOVÝCH A OCELOVÝCH KONSTRUKCÍ

Technická dokumentace

KOMPLETNÍ DODÁNÍ STROJE, ZAŘÍZENÍ NEBO VÝROBKU

Stroje a zařízení

ŘEŠENÍ PRO VÝROBY V ČISTÝCH PROSTORECH, LABORATOŘE, VĚDECKÁ A VÝZKUMNÁ PRACOVIŠTĚ

Čisté prostory

NÁVRH A VÝVOJ KONSTRUKČNÍCH SYSTÉMŮ HLINÍKOVÝCH PROFILŮ

KONSTRUKČNÍ SYSTÉMY

PRODUKTY - VÝZTUHY, STAVITELNÉ NOHY, ZÁSTĚNY, STOLY, PŘÍPRAVKY, PŘÍSLUŠENSTVÍ REGÁLŮ

Produkty

DODÁNÍ DÍLŮ VYRÁBĚNÝCH NA ZAKÁZKU

Zakázková výroba

ODDĚLENÍ PROSTORŮ - PŘEPÁŽKY, STĚNY, ZÁSTĚNY, PARAVÁNY

Nabízíme výrobu zařízení pro oddělení prostorů. Vhodné jsou především do míst s požadavkem na omezení kontaktu mezi osobami. Například obchody, úřady, zdravotnická zařízení a podobně.


Provedení dle dohody se zákazníkem.

- Materiál - plný čirý polykarbonát
- Rozměry dle požadavku zákazníka
- Provedení bezrámové, nebo s rámem z Al profilů
- Pevné, posuvné nebo pojízdné

Kontakt: tel.: 604 287 322, nebo email: info@apme.cz

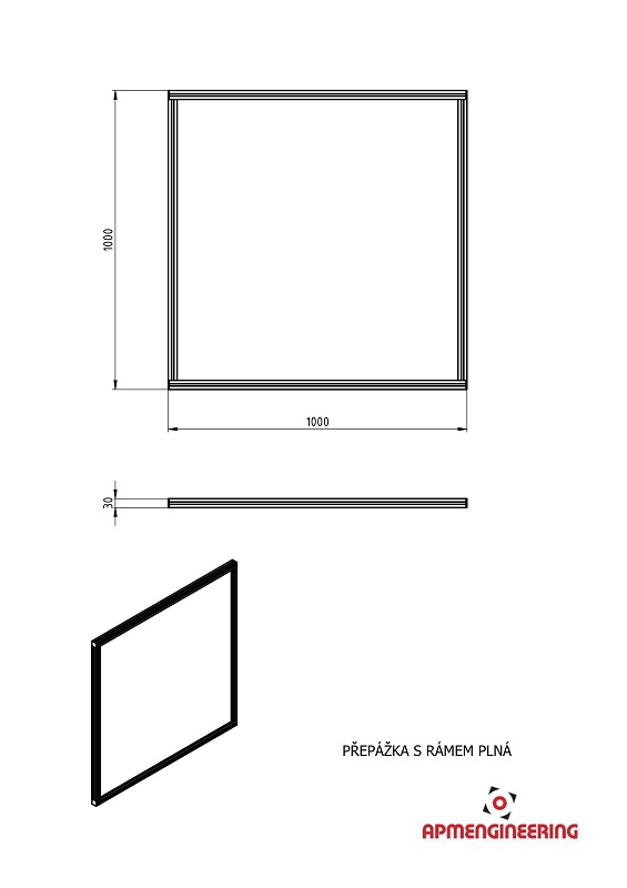
Přepážky s rámem

- Snadná montáž i demontáž na místě

- Uchycení na obslužný pult pomocí dodávaných opěr

- Postavení na podlahu pomocí dodávaných noh

- Jednoduché spojování do větších celků

- Standardní rozměry, nebo podle požadavku zákazníka

Přepážka s ráme plnáPřepážka s rámem s otvoremPřepážka s rámem s posuvnými dvířky

Sestavená přepážkaSestavená přepážka

Přepážka s rámem plnáPřepážka s rámem s otvoremPřepážka s rámem s posuvnými dvířky

Přepážka se svislou opěrouPřepážka s vodorovnou opěrou

Svislá opěraVodorovná opěra

Kontakt: tel.: 604 287 322, nebo email: info@apme.cz

Orientační ceny přepážek s rámem:

2000 Kč/m²   pro přepážky velikosti 3 až 4m²
2500 Kč/m²   pro přepážky velikosti 2 až 3m²
3000 Kč/m²   pro přepážky velikosti 0 až 2m²

Skutečná cena dodávky přepážek je stanovena až na základě poptávky a její výše se odvíjí od rozsahu, pracnosti a specifických požadavků zákazníka.

 

Konstrukční kancelář APM Engineering, s. r. o. Vám nabízí služby zpracování konstrukčních návrhů a strojního inženýrství. Provedeme kompletní technický vývoj produktu od zadání a studie po detailní výrobní dokumentaci včetně průvodních částí pro vydání ES prohlášení o shodě. Obdržíte technickou dokumentaci ve všech stupních. Zajistíme Vám také výrobu navrženého zařízení včetně dodání, uvedení do provozu a dalších náležitostí.

Hlavními oblastmi jsou řešení jednoúčelových strojů a zařízení, automatizace, zařízení pro automobilový průmysl, přípravky, bezpečnostní kryty a ohrazení strojů a pracovišť, zařízení pro logistiku. Navrhujeme rámy strojů a zařízení s požadavky na tuhost a přesnost.

Specializujeme se na stroje a zařízení určená pro provoz v čistých prostorech, jako jsou provozy pro zdravotní výrobu, potravinářství, nebo pro speciální laboratoře.

Zaměřujeme se na řešení s využitím konstrukčních systémů z hliníkových profilů. Jedná se o produktivní prostředky pro rychlé a efektivní řešení. Tyto systémy aplikujeme do řešení pro průmysl, ale i v designu interiérů.



NABÍDKA ŘEŠENÍ, DODÁVEK A SPOLUPRÁCE

APME graf

Hlavními oblastmi našich řešení jsou:

•    jednoúčelové stroje a zařízení

•    stroje a zařízení pro čisté provozy

•    ocelové a hliníkové konstrukce

•    rámy z hliníkových profilů pro stroje a zařízení

•    automatizace, zařízení pro automobilový průmysl

•    přípravky, zařízení pro zkoušky, testování apod.

•    bezpečnostní kryty a ohrazení strojů a pracovišť

•    stoly pro průmysl i design

 
     

 

inPagewebové stránky s AI, doménawebhosting u jediného 5★ registrátora v ČR