STOLY A MONTÁŽNÍ PRACOVIŠTĚ

Navrhneme, kompletně vyřešíme, vyrobíme a dodáme podle Vašeho zadání stoly pracovní, komplexní pracoviště montážní, kontrolní apod.
Konstrukce bude provedena z hliníkových konstrukčních systémů, případně jako ocelová svařovaná. Vybavení pracoviště bude zajištěno podle konkrétního požadavku. Stůl bude vybaven potřebnou elektroinstalací.

stůl montážnmí01stůl montážnmí02stůl montážnmí03
stůl montážnmí04Výstupní stůl linky

 

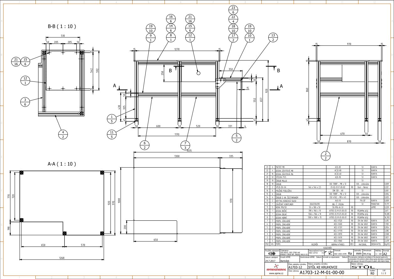
Pracovní stůl

Stůl je navržen podle požadavků zákazníka na míru. Jedná se o stůl určený do potravinářského provozu. Rám stolu je vyroben z hliníkových profilů 50x50mm s bočními drážkami. Horní pracovní deska tl. 15mm, odkládací police v celé ploše pod pracovní deskou a boční police jsou vyrobeny z bílého materiálu PE-UHMW (Ultravysokomolekulární polyethylen). Tento materiál má dobrou odolnost proti otěru a je vhodný pro použití v potravinářském a zdravotním průmyslu. Všechny desky jsou uchyceny pomocí šroubů a závitových vložek, které zajišťují dostatečně pevné uchycení. Stůl je vybaven také jednou uzamykatelnou zásuvkou v podvěšeném zásuvkovém boxu. Zpevnění uchycení boční police je provedeno pomocí výztuh rámu VPLB-50-VA. Pro ustavení stolu na místě jsou nohy osazeny stavitelnými výkyvnými nohami 50/M16-Al/St.

Pracovní stůPracovní stů - detail výztuhyPracovní stůl - modelPracovní stůl - výkres

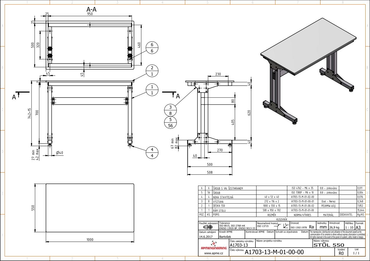
Psací stůl průmyslový

Tento stůl byl navržen podle rozměrových požadavků zákazníka, s požadavkem na zvýšenou tuhost rámu stolu a použití v potravinářském průmyslu. Rám je vyroben z hliníkových profilů 40x40mm s plnými stěnami a nejvíce namáhané spoje jsou zpevněny rámovými výztuhami z ocelového nerezového plechu. Tento způsob uchycení zajišťuje vysokou tuhost celého rámu. Pracovní deska je vyrobena z bílého materiálu PE-UHMW (Ultravysokomolekulární polyethylen) tl. 15mm. Tento materiál má dobrou odolnost proti otěru a je vhodný pro použití v potravinářském a zdravotním průmyslu. Deska je uchycena pomocí šroubů a závitových vložek, které zajišťují dostatečně pevné uchycení. Vyrovnání a ustavení stolu na místě je prováděno pomocí nízkých stavitelných noh, které jsou uchyceny v závitových vložkách lisovaných v rámu.

Psací stůlPsací stůl - detail výztuhyStůl psací - modelStůl psací - výkres 

Výškově stavitelné stoly

Tyto dva stoly byly navrženy podle rozměrových požadavků zákazníka, s požadavkem na chemickou odolnost pracovní desky. Dalším požadavkem byla nosnost jednotlivých stolů 200kg s možností výškového nastavení. Rámy stolů byly vyrobeny z hliníkových profilů 60x30mm a výsuvné nohy byly navrženy z kombinace osmihranného profilu a profilu 40x40mm. Pracovní deska je vyrobena z černého materiálu PEUHMW (Ultravysokomolekulární polyethylen) tl. 20mm. Tento materiál má dobrou odolnost chemickou i odolnost proti otěru a je vhodný pro použití v potravinářském a zdravotním průmyslu. Deska je uchycena pomocí šroubů a závitových vložek, které zajišťují dostatečně pevné uchycení.

Stavitelný stůlStavitelný stůlStavitelný stůl

Stavitelný stůl 

Stůl pro monitory

Tento stůl byl navržen jako pracovní místo pro stojící obsluhu. Rám je navržen z hliníkových profilů 60x30 a 30x30. Pracovní plocha je ve výšce cca 1000mm a pod ní je instalována výsuvná zásuvka. Nad pracovní deskou je rám pro instalaci dvou monitorů. Zadní část stolu je vyplněna děrovaným plechem, který umožňuje uchycení dalšího příslušenství.

Stůl pro monitoryStůl pro monitory

Stůl pro monitory II

Rám těchto stolů je navržen z profilů 40x40mm. Pracovní plocha je ve výšce cca 1000mm a je vyrobena z LTD desky. Nad pracovní deskou je instalována police pro umístění standardních monitorů.

Stůl pro monitoryStůl pro monitory

Stůl s odpruženou deskou

Tento stůl je navržen pro instalaci zařízení vyžadující minimalizaci otřesů. Deska stolu je ocelová, černě lakovaná a je uložena na pneumatických pružinách.

Stůl s odpruženou deskou Stůl s odpruženou deskouStůl s odpruženou deskou

Stůl pod tiskárnu

Tento stůl je navržen pro instalaci průmyslové tiskárny. Vzmledem k hmotnosti tiskárny a požadavkům na tuhost celého stolu byly použity profil 100x50 a 50x50mm. 

Stůl pod tiskárnuStůl pod tiskárnu

 

inPagewebové stránky s AI, doménawebhosting u jediného 5★ registrátora v ČR